top of page
Arquitetura
Residência Canoas

Residencia Unifamiliar desenvolvido para cliente dentro do programa da Caixa Federal de Habitação. Projeto, execução e gerenciamento de obra.
Ano: 2007
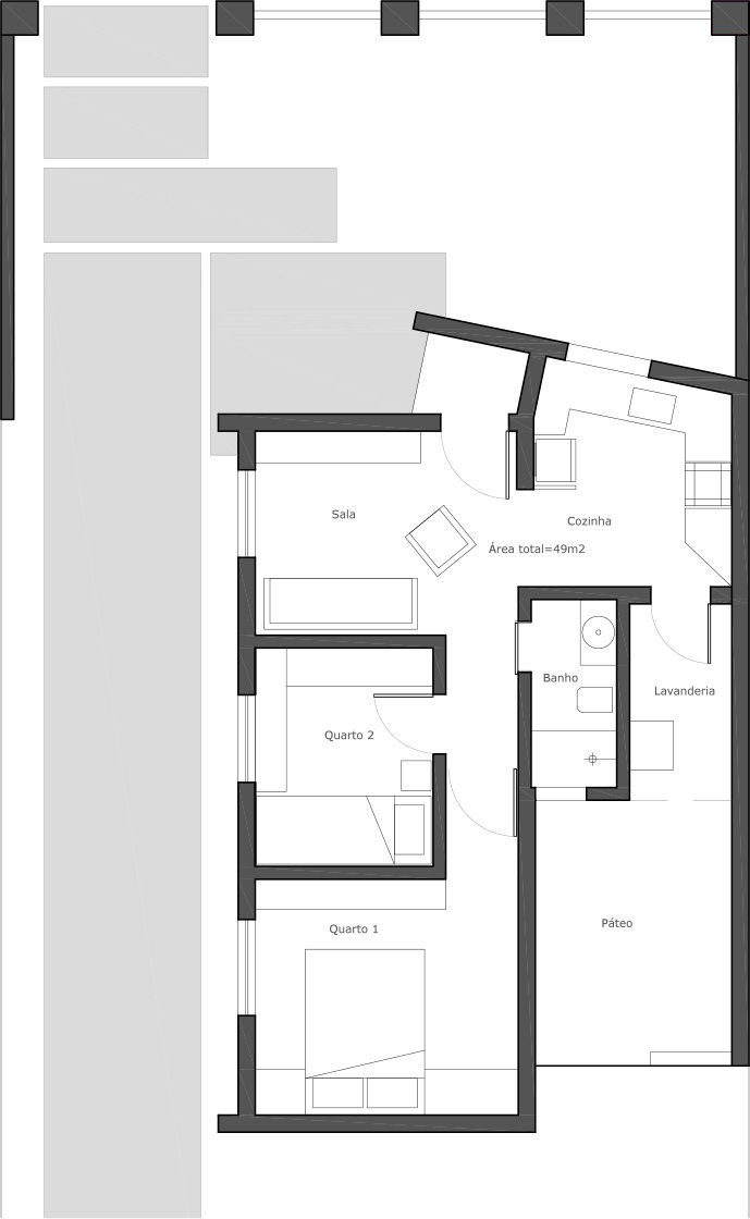
Area construída: 49m2
Local: Nova Santa Rita - RS
Projeto em parceria com Arq. Daniela Vieira da Silva
Construção: Construtora Tavares

Planta baixa

Fachada Canoas 1

Fachada Canoas 2
bottom of page